Are you interested in inspecting this property?
Get in touch to request an inspection.
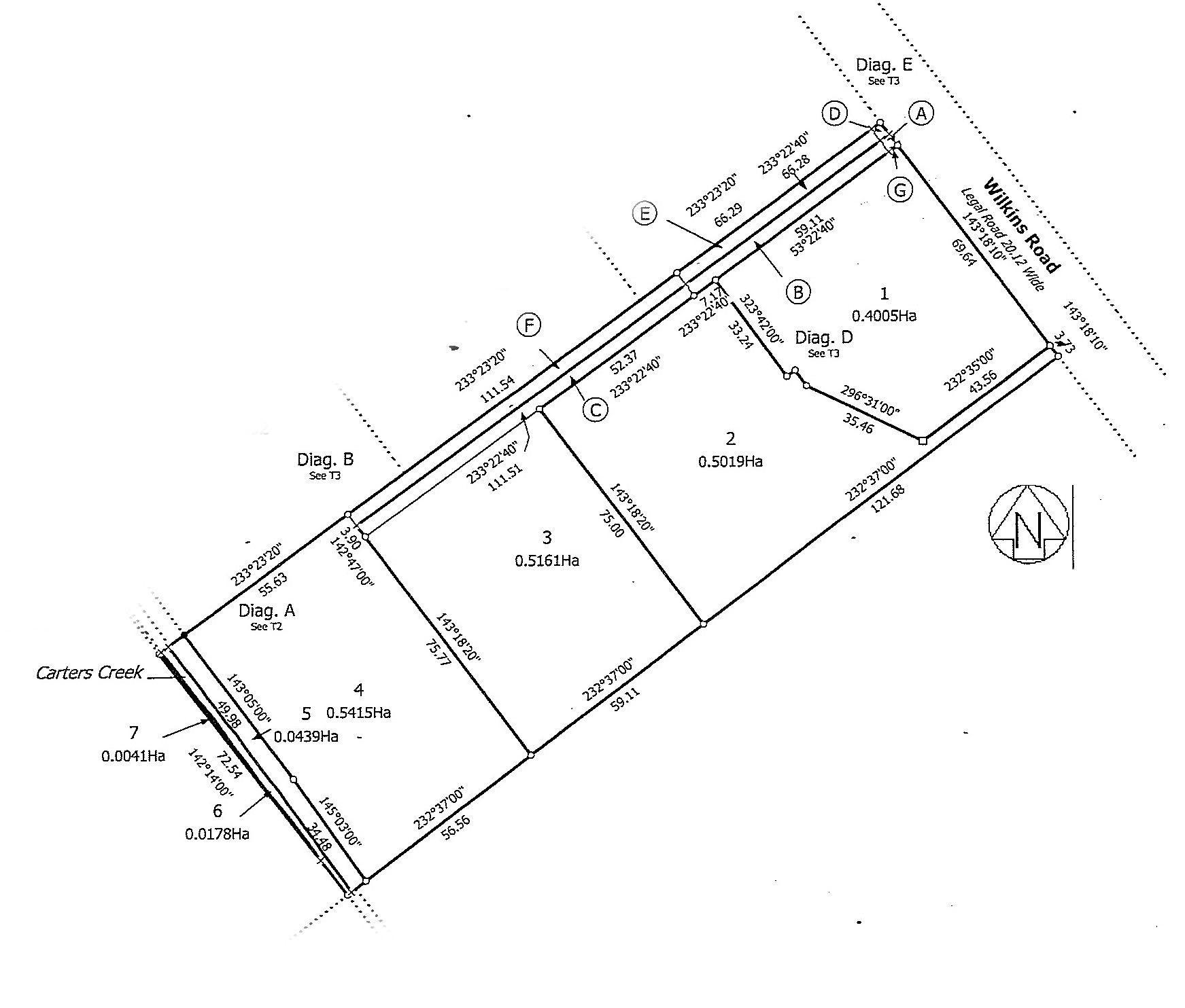
Section for Sale in Tinwald
Build your dream!
- Land: 4,005m² (0.99 acres)
- Front street 4005m2 section.
- Services to the boundary.
- Town supply water.
- Trees within the boundary.
- Close to school, preschool and medical center.
- Close to town boundary.
- Five minutes drive to Lake Hood aquatic park.
Lot 1 825847-4005 meter square Front road entrance off the main road not shared drive way.
Vendor wants to approve Location plan of the building only because he lives on Lot 2. He just wants to ensure that buildings are not compromising his house for future sale and his future living.
Sewage on this block is gravity feed to the Town sewage.
Lot 2 entrance is on the east of the lot 1 boundary.
Water is to the boundary on town supply with meter.
Pegs for boundary are all visual.
No old houses can be transported onto the sections.
Power town water sewage and telecom all to the boundary. No internet.
On sale vendor will put the adjusted fence line between his property and Lot 1.
Priced at $365,000
For more information please copy and paste this URL link into your web browser for more property information: https://vltre.co/IhZDqr or call Chrissy Milne 027 290 6606
AHB30721
4,005m² / 0.99 acres
Agents
- Loading...
Loan Market
Loan Market mortgage brokers aren’t owned by a bank, they work for you. With access to over 20 lenders they’ll work with you to find a competitive loan to suit your needs.
